情報更新日:2025年10月05日
最寄り駅 徒歩 住所 |
賃料 管理・共益費 |
敷金 礼金 |
面積 間取り |
種別 築年月 向き |
---|---|---|---|---|
西武新宿線 『上井草駅』 徒歩16分 東京都杉並区桃井4丁目13-15 |
8.8万円 0.2万円 |
敷:1ヶ月 礼:なし 仲:1.1ヶ月 |
32㎡ 1R |
マンション 2000年04月 東 |
物件名 | ホワイトキューブ 203号室 | ||||
---|---|---|---|---|---|
所在地 | 東京都杉並区桃井4丁目13-15 | ||||
交通 | 西武新宿線 『上井草駅』 徒歩16分 /JR中央・総武線 『西荻窪駅』 徒歩17分 | ||||
賃料 (管理費・共益費) |
8.8万円(0.2万円) | 敷金/礼金 仲介手数料 |
敷:1ヶ月/ 礼:なし/ 仲:1.1ヶ月 | ||
その他料金 | |||||
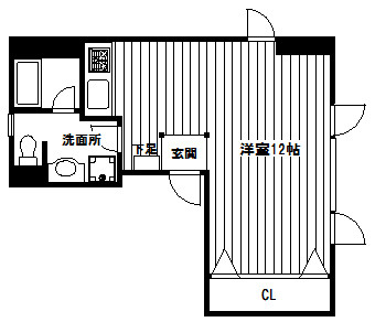
間取り | 1R | 間取り詳細 | 洋室12帖 | 専有面積 | 32㎡ |
種別/構造 | マンション/鉄骨造 | 階部分/階建て | 地上2階部分/地上3階建て | 方位 | 東 |
築年月 | 2000年04月 | 入居可能日 | 指定有り 2025年11月上旬 | 保険 | 損保有り・指定無し |
駐車場 | 無 | ||||
バイク置き場 | 有り | 駐輪場 | 有り | ||
鍵交換代 | 1.76万円 | 保証委託料 | 4.5万円 | ||
設備 | バス・トイレ別|追焚機能付き|浴室乾燥機|室内洗濯機置場|洗面所独立|洗面化粧台|温水洗浄便座|エアコン付き|クローゼット|シューズボックス|ケーブルテレビ|インターネット接続タイプ:光対応|インターネット接続料金:有料|ガスコンロ対応|ガスコンロ三口設置済み|システムキッチン|フローリング|TVモニタ付きインタホン|駐輪場有り|バイク置場有り|公営水道|都市ガス|本下水道| | ||||
条件 | 法人:可|学生:可|2人入居:可|ルームシェア:不可|ペット:不可|楽器:不可|保証会社利用:可|保証人:不要|事務所利用:不可|2階以上|角部屋|2面採光|2駅利用可|2沿線利用可|デザイナーズ| | ||||
備考 | |||||
更新日 | 2025年10月05日 | 情報有効期限 | 2025年10月19日 | ||
お問合せ番号 | 取引形態 | 専属専任媒介 | 業者付け |
※各種情報と現状に差異がある場合は、現状優先となります。
東京都練馬区下石神井4-17-10
営業時間:9:00~18:30 定休日:毎週水曜日、第2・3火曜日
東京都知事免許(14)第17076号